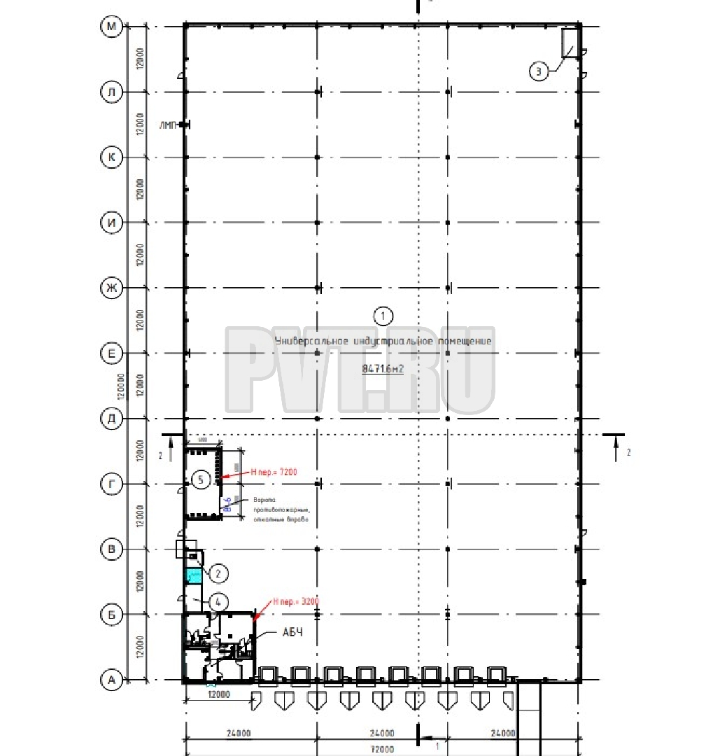
Склад, 8 760,2 м², открытая планировка, готово к въезду

Характеристики помещения

Площадь

8 760,2 м²

Отдельный вход

Да

Парковка

За пределами прилегающей территории

Есть кондиционирование

Да

Пол антипыль

Да

10 718 243 426 527,20 ₽

1 223 515 836 ₽/м²

Связаться с нами

Коммерческие условия

Договор

Продажа

Налогообложение

УСН

A

Класс

5074

Налоговая

2018 г.

Год постройки

142 248 м²

Общая площадь

1

Количество этажей

Вы можете записаться на просмотр интересующей вас площади